
43 Norfolk Street Waterford, ON N0E 1Y0
2 Beds
2 Baths
1,266 SqFt
UPDATED:
Key Details
Property Type Single Family Home
Sub Type Single Family Residence
Listing Status Active
Purchase Type For Sale
Square Footage 1,266 sqft
Price per Sqft $485
MLS Listing ID 40785012
Style Bungalow
Bedrooms 2
Full Baths 2
Abv Grd Liv Area 1,266
Property Sub-Type Single Family Residence
Source Cornerstone
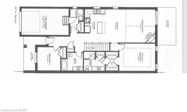
Property Description
has large windows and a rough in bath for your future development. Tankless water heater (owned), central air, forced air gas furnace, utility sink, sump pump and fiberglass shingles are just some of the features of this quality home. Construction has started but there is still time for some buyer choices. Call now! (taxes not yet assessed) photos of a similar model for demonstration purposes only
Location
Province ON
County Norfolk
Area Waterford
Zoning R2-H
Direction Hwy 24 north to Concession 8; east to Norfolk St. corner of Norfolk and Mechanic
Rooms
Basement Full, Unfinished, Sump Pump
Main Level Bedrooms 2
Kitchen 1
Interior
Interior Features Auto Garage Door Remote(s), Central Vacuum Roughed-in
Heating Forced Air, Natural Gas
Cooling Central Air
Fireplace No
Appliance Instant Hot Water, Water Heater Owned, Hot Water Tank Owned
Laundry Electric Dryer Hookup, Laundry Room, Main Level, Washer Hookup
Exterior
Exterior Feature Year Round Living
Parking Features Attached Garage, Garage Door Opener, Gravel
Garage Spaces 1.0
Utilities Available Electricity Connected, Garbage/Sanitary Collection, High Speed Internet Avail, Natural Gas Connected, Recycling Pickup
Roof Type Fiberglass
Porch Deck
Lot Frontage 32.0
Garage Yes
Building
Lot Description Urban, Library, Place of Worship, Rec./Community Centre, School Bus Route, Schools, Shopping Nearby, Trails
Faces Hwy 24 north to Concession 8; east to Norfolk St. corner of Norfolk and Mechanic
Foundation Poured Concrete
Sewer Sewer (Municipal)
Water Municipal
Architectural Style Bungalow
Structure Type Brick Veneer,Stone,Vinyl Siding
New Construction No
Schools
Elementary Schools Waterford Ps; St Bernard Of Clairvaux
High Schools Waterford Dhs; Holy Trinity
Others
Senior Community No
Tax ID 000000011
Ownership Freehold/None






